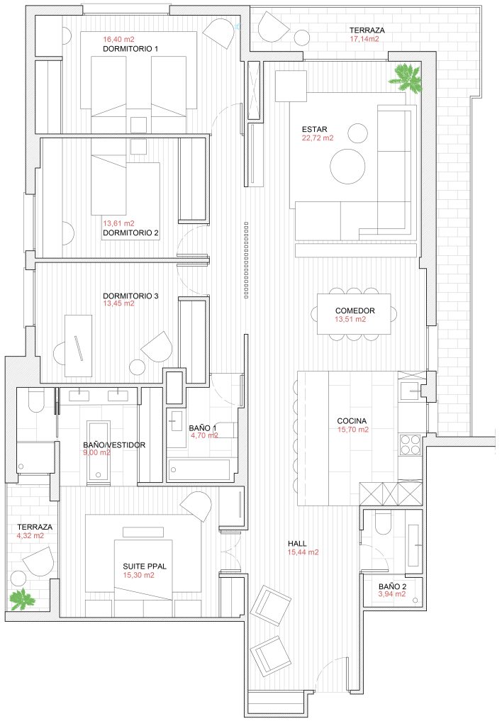
El presente proyecto de interiorismo y decoración de esta vivienda de 180m² construidos permitió transformar por completo su distribución inicial poco eficiente, caracterizada por un largo pasillo angosto con estancias a ambos lados, una cocina alejada de la zona de día y un aprovechamiento deficiente del espacio. Durante el proceso de diseño, concebimos un amplio espacio abierto donde conviven el salón-comedor, un generoso recibidor, un baño de cortesía y cuatro dormitorios, de los cuales uno se ha convertido en suite, con un baño adicional que da servicio a los otros tres anteriores.
Con el diseño planteado, buscamos un equilibrio entre lo clásico y lo contemporáneo, fusionando elementos tradicionales con toques modernos y cálidos. Las cornisas molduradas retroiluminadas a modo de candileja en los techos aportan un aire de sofisticación, mientras que el pavimento en espiga y los solados geométricos de cerámica en la cocina y el baño de la suite principal, otorgan un carácter único y atemporal. La decoración, moderna pero cálida, destaca por sus tonos neutros que contrastan con la base clásica, creando un ambiente acogedor y elegante.
Gracias a la intervención que hicimos en ella, la vivienda ha visto optimizada su distribución, ganando amplitud y luminosidad en todos los espacios, haciendo que se sienta más fluida y conectada. La apertura de la cocina al salón-comedor y la integración de los diferentes ambientes ha logrado ampliar la superficie útil y la sensación visual, transformando el hogar en un lugar más funcional y confortable, sin perder esa esencia que le confieren sus detalles clásicos.

















